INTERNATIONAL REALTY GROUP LTD
For a better view on INTERNATIONAL REALTY GROUP LTD, Update Your Browser.

0.3367 DUPLEX LAND LOT WITH APPROVED PLANS

Savannah, Savannah & Bodden Town,
Cayman Islands
MLS#: 420427 Land (For Sale)
  • 90.00 Width
  • 172.00 Depth
CIREBA MLS LDX feed courtesy of CENTURY 21 THOMPSON REALTY

PROPERTY DESCRIPTION

Discover an exceptional opportunity in the heart of Savannah with this spectacular 0.3367 acre parcel of land, perfectly positioned for both lifestyle buyers and savvy investors.

This property offers outstanding flexibility, ideal for those looking to build an income-producing investment properties or create a custom forever home with additional rental potential. The generous lot size provides ample space for thoughtful design, outdoor living, and long-term value growth.

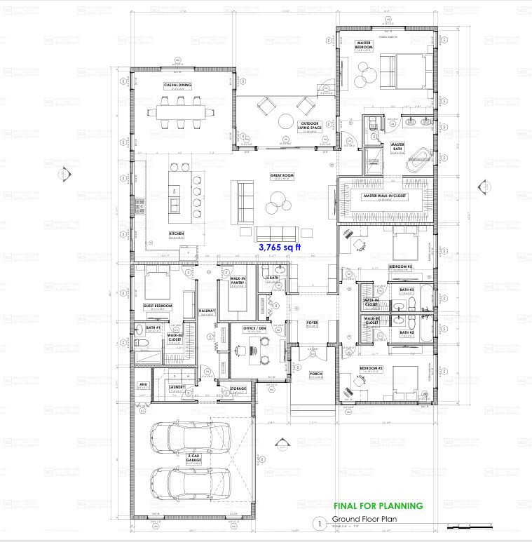
Even more compelling, the property comes with approved plans for a phenomenal 3,765 sq ft single-family residence (plans sold separately) featuring:

4 spacious bedrooms
4.5 bathrooms
Double-car garage
Expansive, well-designed living spaces

Whether you choose to move forward with the stunning pre-approved design or take advantage of the duplex zoning for maximum return on investment, this property presents a rare and versatile opportunity in one of Savannah’s most desirable locations.

Build your vision. Maximize your investment. Secure your future.

Key Details

0.3367 DUPLEX LAND LOT WITH APPROVED PLANS
Width 90.00
Depth 172.00
Type Residential (Land)
Status New
Acreage 0.3367
Block & Parcel 28C,549
Lot Size 0.34
Views Garden View
Zoning Low Density residential
Soil Rock

Location

*Disclaimer: The information contained herein has been furnished by the owner(s) and or their nominee and represented by them to be accurate. The listing company, agent and CIREBA MLS disclaims any liability or responsibility for any inaccuracies, errors or omissions in the represented information. The listing details herein are also courtesy of CIREBA (Cayman Islands Real Estate Brokers Association) MLS and/or via LDX (Listing Data Exchange) feed. All the information contained herein is subject to errors, omissions, price changes, prior sale or withdrawal, without notice and is at all times subject to verification by the purchaser(s).

NEIGHBORHOOD DEMOGRAPHIC

Savannah & Bodden Town

Savannah & Bodden Town The neighbourhood for families

Head east from the districts of Red Bay, Prospect and Spotts and you will find yourself in Savannah and Bodden Town, Grand Cayman’s original capital. Thanks to steady improvements in traffic links and the introduction of the Countryside Shopping Centre, Savannah has become an increasingly popular neighbourhood for families who are looking to maximise value for money, without compromising on their local amenities. This commu...

Read More
$
1069
/mo

Mortgage Estimator

Our Mortgage Calculator lets you estimate your monthly mortgage payment input different house prices, terms, interest rates, and down payments and see varying monthly loan amounts.

GET MORE INFORMATION

Other properties you may want to consider